All Real Estate for Sale
18,063 properties
in
119 countries
Back to Search Results
Back to Search Results
Commercial room in Old Batumi - 750 from the sea
> Industrial Properties in Europe · for sale & rent
4 photos
€ 1,388,000
£1,213,806.00
$1,619,240.80
Explore surroundings in Google maps
Loading...
Commercial room in Old Batumi - 750 from the sea
🔹 #Commercial #room in Old Batumi - 750 from the sea
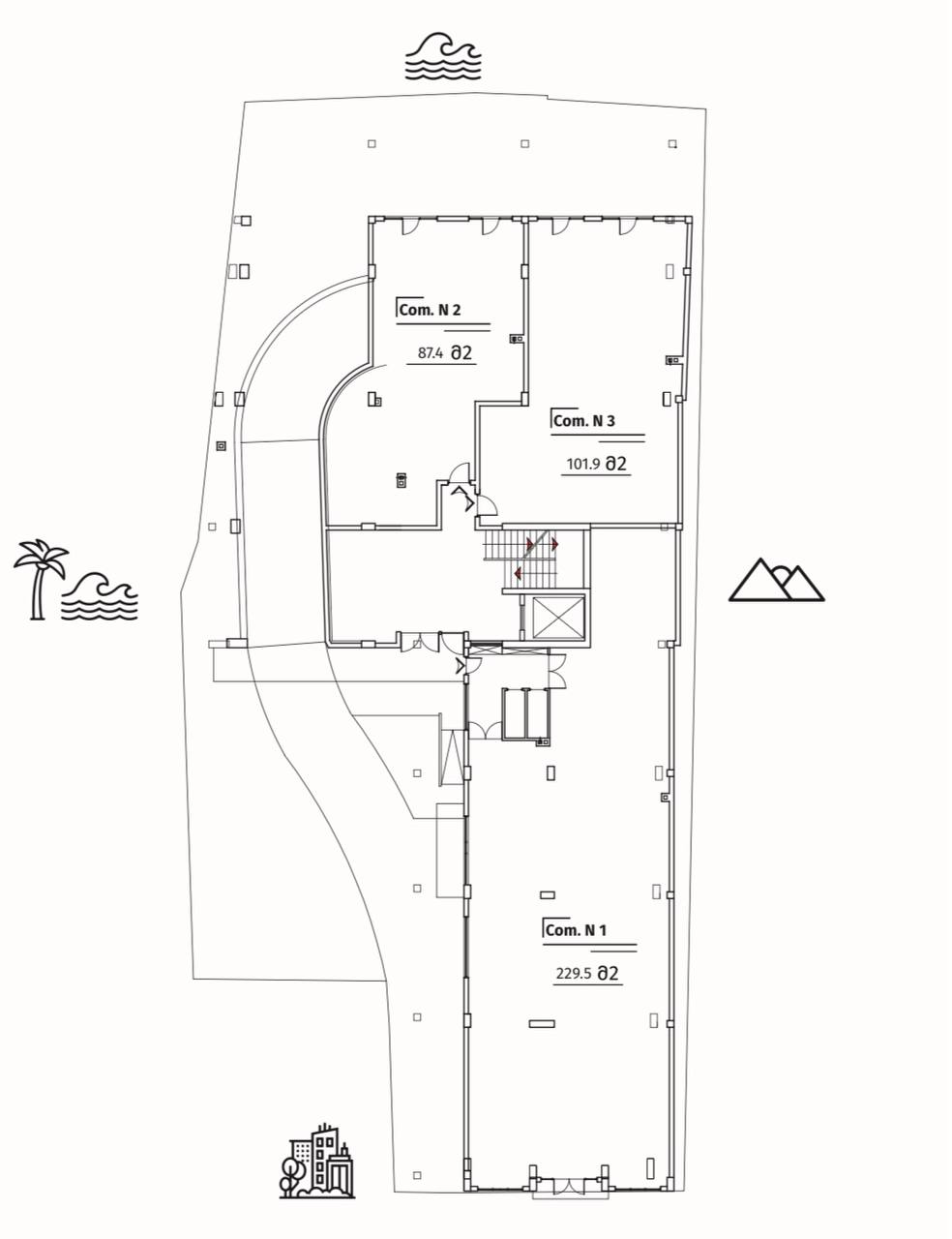
Area: 418.8 m²
Ceiling height: 3.30 m
📍Location: The Old Town, just 750 m to the sea and the boulevard - a great place for business with high pedestrian traffic.
Facade: It will be made in the style of the old city, using natural stone, bronze elements and high-quality moisture-proof coatings.
Condition: Object under construction
Deadline: September 2026.
💰 Price per m²: $3,850
💵 Total cost: $1,612,380 (including VAT)
📆 Installment until the end of construction
📞 For details, please contact us in private messages or by phone:
https://t.me/david_tsurkava
https://wa.me/995577345003
A great option for investors and those who plan to open a business in the tourist center of Batumi.
Commercial
Property ID: 70913
For:
Sale
Georgia
Ajaria
Address:
Batumi
Batumi
Contact me about this property for sale
Private Seller
There are some errors in the form.
First Name
Please enter your first name.
Last Name
Please enter your last name.
Phone Number
Email Address
Please enter your email address.
Query
I agree to save and process the entered data as explained in your
Privacy Policy
.
Please confirm that you allow us to save and process the entered data.
Please solve the captcha.