All Real Estate for Sale
20,449 properties in 126 countries
 Back to Property Details  Back to Property Details

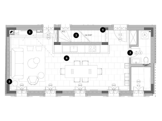
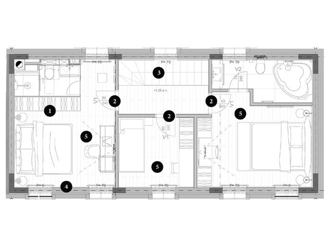
Discover Your Exclusive Seaside Dream Property in Tivat, Mon - Photo Gallery