All Real Estate for Sale
18,887 properties in 124 countries
 Back to Property Details  Back to Property Details

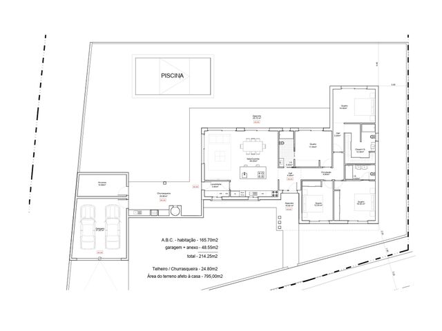
Land with project Silver Coast Portugal - Photo Gallery