All Real Estate for Sale
20,457 properties in 126 countries
 Back to Property Details  Back to Property Details

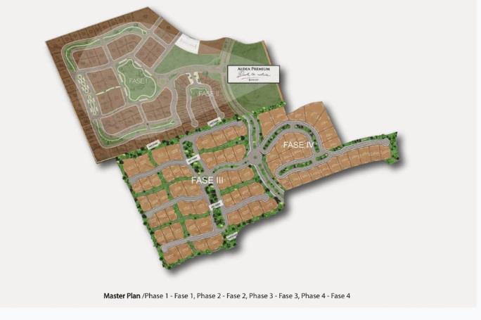
Lot 15977 sqf. Aldea Premium, Tulum - Photo Gallery