All Real Estate for Sale
21,278 properties in 129 countries
 See all Properties  See all Properties

PEACEFUL COUNTRYSIDE RETREAT – RUIN WITH 4,300 SQM OF BUILDA

  
  
  
  
  

€ 40,000

£34,721.20
$46,848.00

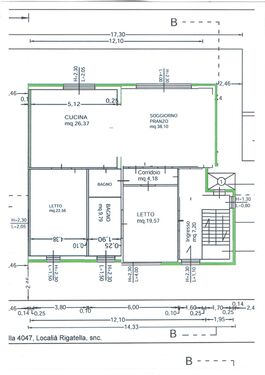
PEACEFUL COUNTRYSIDE RETREAT – RUIN WITH 4,300 SQM OF BUILDA

Just a few kilometers from the center of Atessa (CH), in Abruzzo, surrounded by the tranquility of the countryside, we offer for sale a ruin with a large plot of 4,300 sqm: a true gem for those looking to invest and create a unique project.

✅ Possibility to transform it into an exclusive 550 sqm villa on 3 floors, ideal as a main residence or holiday home.
✅ Perfect opportunity to develop a charming Bed & Breakfast, taking advantage of its strategic location between nature and services.
✅ For those with greater investment capacity, the land is also suitable for the installation of solar panels, ensuring a green and profitable business.

📸 Renderings and images of a possible project are available, to help visualize the extraordinary potential of the property.

A true oasis of peace and quiet, immersed in greenery, yet just minutes from Atessa’s town center and conveniently located to reach both the Costa dei Trabocchi and the Majella mountains.

House

Property ID: 72635

For:
Sale
Habitable:
No
Floor area:
550 m²
Size of land:
4300 m²
Energy Rating:
G

Italy

Abruzzi

Address:
contrada Rigatella Atessa 66041 provincia di Chieti Abruzzo
ATESSA
Close to:
School, Kindergarten, Hospital, Nursing home, Bus stop, Shopping area, Park, Public square, Leisure centre, Touristic area, Ski slope, Mountain, Beach, Natural park, Forest, Lake, River.
Setting:
Countryside, Village, Town, City, Mountain, Beach.

Contact me about this property for sale

Private Seller
Please solve the captcha.