All Real Estate for Sale
18,320 properties in 120 countries
 Back to Search Results  Back to Search Results

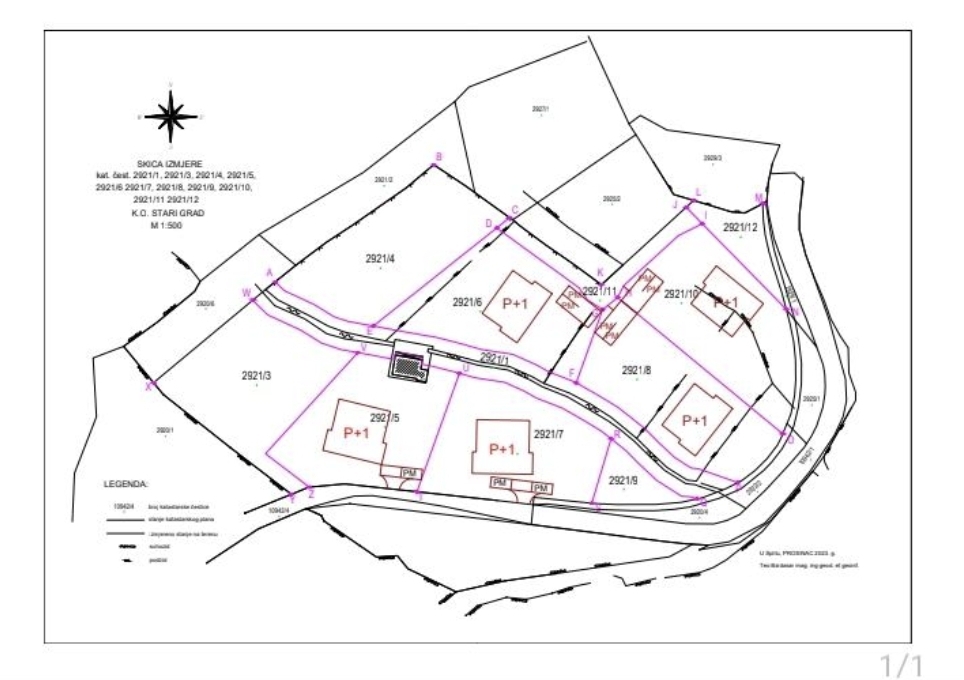
SALE OF CONSTRUCTION LAND – STARI GRAD, HVAR (ZONE S)

  
  

€ 250,000

£219,000.00
$292,800.00

SALE OF CONSTRUCTION LAND – STARI GRAD, HVAR (ZONE S)

Location: Stari Grad, Hvar Island
📐 Plots: Multiple plots, each around 1,000 m²
🏗 Approved permits for buildings of 313 m²
🌊 Sea view, access to paved road
📜 Clean ownership, 1/1

Construction plots for sale in a prime location in Stari Grad, Hvar, within the construction zone S.

KEY ADVANTAGES:
✔ Plot size: approximately 1,000 m²
✔ Option to purchase multiple plots
✔ Sea view and surrounding natural scenery
✔ Access to paved road – great transport connections
✔ All utilities (electricity, water, sewage) available nearby
✔ Close to the sea and Stari Grad center
✔ Ready for immediate construction – location permits issued

LOCATION:
📍 500 m from the sea
📍 3 minutes by car to the ferry port
📍 Close to main roads leading to Jelsa, Hvar Town, and other parts of the island

📝 A perfect opportunity for investors and those seeking an exclusive space for building!

📞 For more information and to schedule a viewing on site, please contact:
☎ 00 385 98 1633758
📧 lukafranetovic@gmail.com

Site

Property ID: 67108

For:
Sale

Croatia

Splitsko-Dalmatinska

Address:
Stari Grad, otok Hvar
Stari Grad, Hvar

Contact me about this property for sale

Private Seller
Please solve the captcha.