All Real Estate for Sale
18,061 properties in 119 countries
 Back to Search Results  Back to Search Results

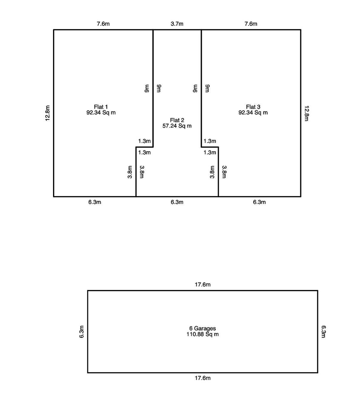
SIX HOUSES ON ONE PROPERTY FOR SALE - PERFECT FOR AIRBNB

  
  
  
  
  
  
  
  
  
  
  
  

€ 240,000

£209,880.00
$279,984.00

SIX HOUSES ON ONE PROPERTY FOR SALE - PERFECT FOR AIRBNB

🏡 Property For Sale – OSHAKATI EAST 🏡

💥 Investment Opportunity! 6 Houses on One Erf 💥
Located next to Bahai Susan, this well-maintained property is ideal for student accommodation or self-catering units.

✨ Property Features:
🔸 4 x 2-Bedroom Houses
🔸 2 x 1-Bedroom Houses
🔸 Each Unit Has Its Own Lock-Up Garage
🔸 Walking Distance from Oshakati Hospital – Perfect for Medical Students
🔸 Secure and Neat Setup
🔸 Excellent Rental Income Potential
💰 Selling Price: N$ 4,900,000.00 - Offers Welcome
📊 Valuation: N$ 5,500,000.00

WhatsApp +264 81 129 2920
Email: george@shayela.com.na

House

Property ID: 72052

For:
Sale
Type:
Town house
Habitable:
Yes
Condition:
2nd hand

Size of land:
1338 m²
Presently:
Occupied
Structure:
Brick, Concrete.
Extras:
Garage.

Namibia

Oshana

Address:
oshakati
Oshakati East
Close to:
School, University, Hospital, Shopping area.
Setting:
Town.

Contact me about this property for sale

GC Shayela Properties CC
George Scheun Coetzee Jr
Phone: +264811292920

see all properties for sale from George Scheun Coetzee Jr

George Scheun
Please solve the captcha.