All Real Estate for Sale
21,117 properties in 129 countries
 See all Properties  See all Properties

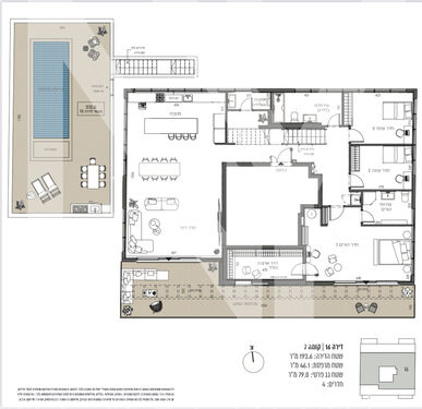
Tel Aviv | Penthouse | Around Kikar Hamedina | One level

  
  
  
  
  
  
  

€ 5,600,000

£4,881,408.00
$6,606,320.00

Tel Aviv | Penthouse | Around Kikar Hamedina | One level

In the vibrant center of Tel Aviv rises a prestigious real estate project,
offering more than just apartments it creates a new way of life.
Designed at the highest standards, this building combines urban lifestyle with uncompromising luxury.

Why Choose This Project?

Prime Location In the heart of Tel Aviv, just a short walk from Rothschild Boulevard, Rabin Square,
Ibn Gvirol, and Shlomo HaMelech Street.
Contemporary Architecture Brand-new apartments meticulously planned to balance functionality and elegance.
Full Convenience High-speed elevators, spacious underground parking, private storage rooms, and beautifully designed green areas.
Unique Living Experience Every detail is perfected, from the impressive entrance to the sunlit seating areas.
A Rare Opportunity -The Most Desired Property in Tel Aviv

This project features a luxury penthouse on a single level with a private pool one of the rarest finds in the city.
The penthouse includes an expansive entertainment space and a 30 sqm pool,
creating the ultimate lifestyle experience in Tel Aviv.

Apartment

Property ID: 75359

For:
Sale
Type:
Penthouse
Condition:
New

Floor area:
194 m²
Energy Rating:
A
Built in:
2026
Presently:
In construction
Structure:
Concrete.
No. of bathrooms:
4
No. of bedrooms:
4+ Bedrooms
Floor:
Top floor
Extras:
Balconies, Terrace.

Israel

Tel Aviv

Address:
בלוך תא
Tel aviv
Close to:
School, University, Train station, Park, Natural park.
Setting:
City, Beach.

Contact me about this property for sale

NY REALTY
Alex Nefussy
Phone: +97254470407

see all properties for sale from Alex Nefussy

Alex
Please solve the captcha.